Haus im Grünen: Blockhaus mit großem Garten und sanierungsbedürftigem Altbestand
21522 Hohnstorf, Haus zum Kauf
Kontaktdaten
-
NameHerr Daniel Legin
-
AdresseLüner Rennbahn 9
21339 Lüneburg -
E-Mail Direkt
-
Tel. Zentrale
Objektdaten
-
Objekt ID1002022094
-
ObjekttypenFerienimmobilie, Haus
-
Adresse21522 Hohnstorf
-
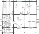
Wohnfläche ca.84 m²
-
Nutzfläche ca.227 m²
-
Grundstück ca.3.360 m²
-
Zimmer4
-
Schlafzimmer2
-
Badezimmer1
-
Separate WC1
-
Terrassen1
-
Wesentlicher EnergieträgerGas
-
Baujahr1990
-
Zustandgepflegt
-
BauweiseHolz
-
Stellplätze gesamt4
-
Stellplätze4
-
ProvisionspflichtigJa
-
Käuferprovision3 % zzgl. MwSt.
-
Kaufpreis309.000 EUR
Ausstattung / Merkmale
- ✓ Als Ferienimmobilie geeignet
- ✓ Außenstellplatz
- ✓ Carport
- ✓ Dielenboden
- ✓ Fliesenboden
- ✓ Holzbauweise
- ✓ Separates WC
- ✓ Terrasse
Energieausweis
-
EnergieausweistypBedarfsausweis
-
GebäudeartWohngebäude
-
Baujahr lt. Energieausweis1990
-
PrimärenergieträgerGas
-
Endenergiebedarf205,00 kWh/(m²·a)
-
EnergieeffizienzklasseG
Objektbeschreibung
Beschreibung
In Hohnstorf-Elbe, im idyllischen Ortsteil Bullendorf, befindet sich dieses charmante Blockhaus aus dem Jahr 1990, das auf den ersten Blick mit seiner natürlichen Ausstrahlung und der ruhigen Lage begeistert. Mit 84 m² Wohnfläche, bietet das Haus vier gemütliche Zimmer, die durch den warmen Holzcharakter eine besonders behagliche Wohnatmosphäre schaffen. Es eignet sich hervorragend für Paare, kleine Familien oder alle, die die Nähe zur Natur und eine naturnahe Bauweise schätzen.
Das Highlight des Anwesens ist zweifellos das weitläufige Grundstück von 3.360 m², das viel Raum für Erholung, Hobby und individuelle Gestaltungsmöglichkeiten bietet. Im hinteren Bereich eröffnet sich ein besonderer Rückzugsort: ein kleiner Schwimmteich, an dem eine charmante Holzhütte für entspannte Stunden am Wasser sorgt. Der große Garten lässt sich vielseitig nutzen – ob als Spiel- und Liegewiese, als Platz für Gartenbau oder einfach als private Oase im Grünen.
Zur Ausstattung gehören zwei Carport-Stellplätze, die ausreichend Platz für Fahrzeuge oder auch zusätzliche Abstellfläche bieten. Die Beheizung des Hauses erfolgt derzeit über die Heizungsanlage im angrenzenden Altbestandshaus, welches sanierungsbedürftig ist. Hier besteht die Möglichkeit einer Modernisierung oder die Option, die Heizungsanlage ins Blockhaus zu integrieren um so den Wohnkomfort weiter zu steigern.
Das Gesamtpaket aus gemütlichem Blockhaus, großzügigem Garten mit Naturteich und den individuellen Gestaltungsspielräumen macht dieses Anwesen zu einer seltenen Gelegenheit in ruhiger Lage. Wer das Besondere sucht und ein naturnahes Wohnumfeld zu schätzen weiß, findet hier ein Zuhause mit einzigartigem Charme und großem Potenzial.
Ausstattung
- Blockhaus
- Gründach
- 3360 m² Garten
- Erneuerung Heizung (2008)
- sanierungsbedürftiges Nebengebäude mit Reetdach
Sonstiges
Haben Sie Interesse an diesem in Holzbauweise errichteten Einfamilienhaus? So kontaktieren Sie uns gerne direkt unter 04131 - 22 30 793 oder senden uns eine E-Mail an info@diemaackler.de. Wir freuen uns auf Ihre Kontaktaufnahme.
Wir weisen darauf hin, dass sämtliche Objektangaben und Angebotsunterlagen vom Eigentümers stammen. Trotz sorgfältiger Prüfung können wir keine Gewähr für die Richtigkeit der Daten übernehmen. Ebenso wird keine Haftung für bestimmte Größe, Güte und Beschaffenheit des Verkaufsobjektes übernommen.
Lage
Der Ortsteil Bullendorf gehört zur Gemeinde Hohnstorf (Elbe) im Landkreis Lüneburg und liegt in unmittelbarer Nähe zur Stadt Lauenburg/Elbe. Geprägt von Ruhe, Natur und dörflichem Charme, bietet Bullendorf eine idyllische Wohnlage direkt am Elbufer. Das Umfeld zeichnet sich durch weite Felder, Wiesen und den Elbdeich aus – ideal für Naturliebhaber, Spaziergänger und Radfahrer.
Dennoch ist eine gute Anbindung gegeben: Einkaufsmöglichkeiten, Ärzte, Schulen und Kindergärten befinden sich in Hohnstorf und in der benachbarten Stadt Lauenburg, die nur wenige Minuten entfernt liegt. Über die nahegelegenen Bundesstraßen und die Bahnverbindung in Lauenburg sind die Hansestädte Lüneburg und Hamburg ebenfalls bequem erreichbar.
Bullendorf verbindet ländliche Ruhe mit der Nähe zu städtischer Infrastruktur – ein Wohnort mit hoher Lebensqualität für alle, die Natur und Entspannung schätzen, ohne auf gute Erreichbarkeit verzichten zu wollen.
Die dargestellte Position der Immobilie ist nur eine ungefähre Angabe.
Besondere Immobilienangebote
In diesem Bereich finden Sie die Objekte, die auf Kundenwunsch nicht in Onlineportalen zu finden sind.
Zu weiteren Informationen rufen Sie uns an oder nutzen unser Kontaktformular.






















